Fotos Fotos
Datos Volver

Departamento a estrenar en adrogue bynnon 2000

Location Bynnon al 2000 - José Mármol

Prev
Prev
Venta
USD 84.000
Propiedad

Departamentos

Ambientes

2 ambientes

Dormitorio

1 dormitorio

Baño

1 baño

Superficie

Sup. cubierta 38m2

Pisos

1 piso

Disposicion

Disposición Frente

Orientacion

Orientación Sur-oeste

Codigo Código de propiedad: IAP6688826

Datos Acerca de la propiedad

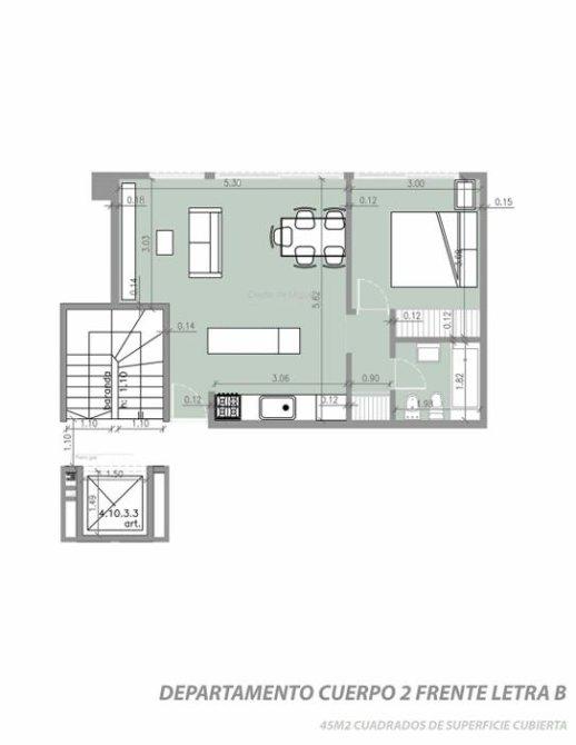
Increíble depto 2 ambientes (flat) 

En el mismo Edificio tenemos opciones de Duplex y Departamento (pasante). Consultar disponibilidad en caso de interesarle otras opciones!

La propiedad cuenta con una excelente ubicación a 1 cuadra de las estación de José Mármol y a 10min. del centro de Adrogué.

Al ingresar te encontrás con el living-comedor con amplio balcón que aporta luminosidad, conectado a la cocina con muebles bajo y sobre mesada. Luego  encontramos el baño completo y la habitación con placard embutido .

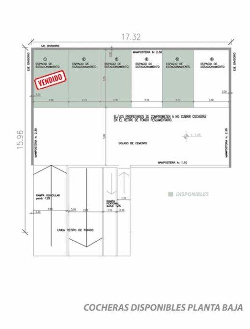
Consultar por cocheras disponibles (precio adicional).

Características principales:

- Servicios individuales

- Calefacción por radiadores

- Cañerías de gua fría/caliente por termofusión (desagües de polipropileno

- Ventanas de alta prestación y cierre hermético

- Puertas principales de madera de alta calidad

- Instalación de cañerías embutidas para A/A tipo split

- Piso de porcelanato símil madera

- Griferías FV o similar

- Sanitarios Ferrum o similar

- Placard embutido y muebles de cocina de melamina de alta calidad

¡No dudes en comunicarte con nosotros!

Oficina José Mármol: 2062-2428

WhatsApp Oficina: 11 2858-7805

Otros números:11 6104-8465 / 11 4061-7907

Comodidades Comodidades

balcon

Con balcon

Calefaccion

Con calefacción

Ascensor

Con ascensor

Ver más vermas

Datos Ubicación

Venta

USD 84.000

Datos Propiedades Relacionadas

Contacto

¿Te interesa esta propiedad?
Contactate ahora

Ver
Chatea con nosotros
Whatsapp